PROSJEKTER / HYTTE / DAGALI
Dagali
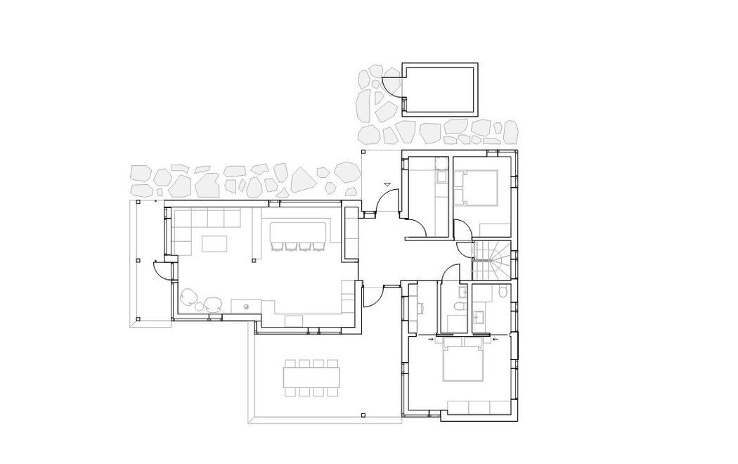
Ny hytte - under oppføring
Hytta i vakre omgivelser på Dagali består av to volumer med saltak, som er koblet sammen med en romslig entré. Det ene volumet består av soveromsavdeling med hemseetasje, mens det andre består av oppholdsareal. Fasadene har store glassflater mot naturen, og mørk tømmermannspanel. Hytta legges ut for salg om kort tid.
I samarbeid med Holedesign.




