PROSJEKTER / BOLIG / RUTH MAIERS GATE
Ruth Maiers gate
Ny enebolig
Sted: Lillestrøm
Areal: 276 m2 BRA
Status: Under oppføring
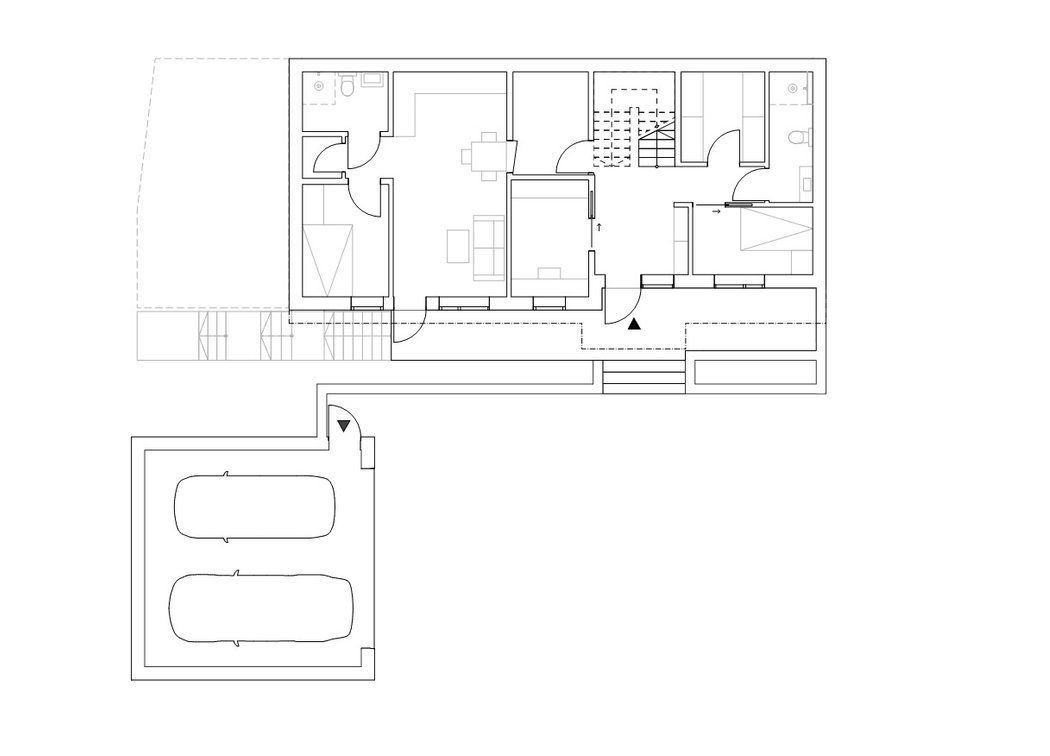
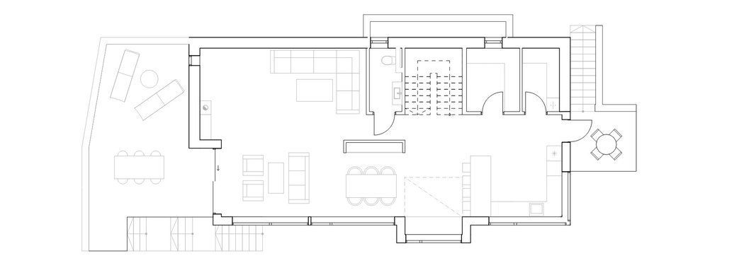
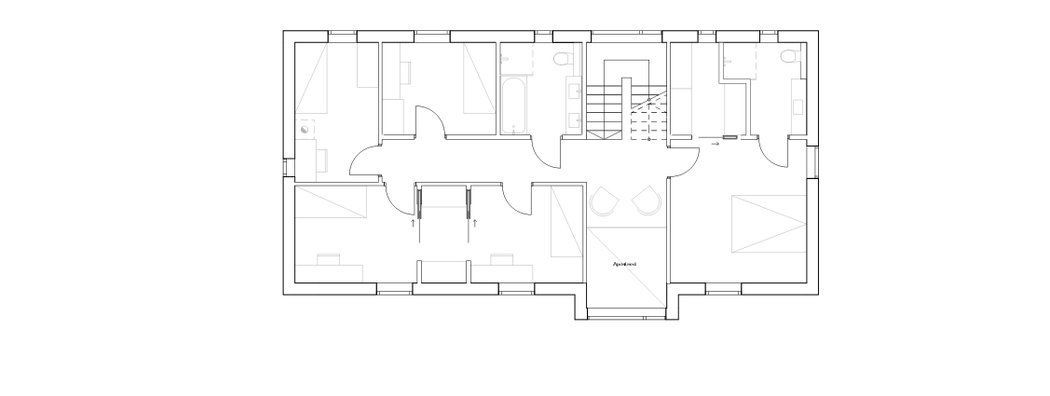
Smal tomt i bratt, sør-vendt skrent. Enebolig tegnet for en familie på syv med muligheter for uteleie av deler av 1. etg.
Boligen har tre etasjer og en stor takterrasse samt en garasje.






