PROSJEKTER / BOLIG / KURESKJÆRVEIEN - HUS 2
Kureskjærveien
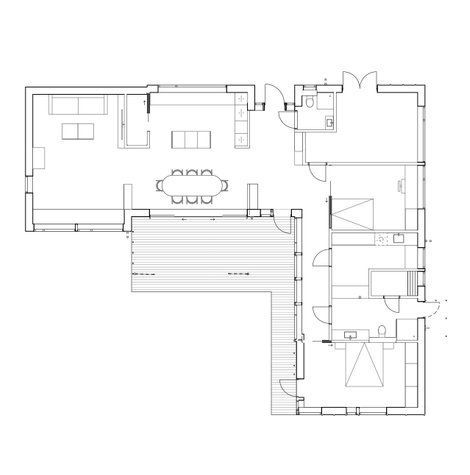
Ny enebolig i massivtre
Sted: Moss
Areal: 156 m2 BRA
Status: Ferdigstilt
Nytt bolighus i Moss på en naturskjønn tomt med utsikt til Kurefjorden. Boligen har alt på ett plan og er oppført i massivtre.






