PROSJEKTER / BOLIG / KURESKJÆRVEIEN - HUS 1
Kureskjærveien
Ny enebolig i massivtre
Sted: Moss
Areal: 180 m2 BRA
Status: Ferdi
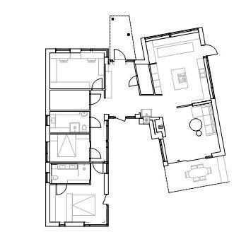
Nytt bolighus i Moss på en naturskjønn tomt med utsikt til Kurefjorden. Boligen har alt på ett plan og er oppført i massivtre. Huset består av to volumer med saltak som kobles sammen av et mindre volum med flatt tak som også er husets entre. De to bygningskroppene henvender seg mot utsikten og danner fine uterom i mellom seg. Fokus på sammenheng mellom ute og inne har stått sentralt i utviklingen av prosjektet.






