PROSJEKTER / BOLIG / HELLUMHJØRNET
Hellumhjørnet
Ny leilighetsblokk med næring i 1. etg.
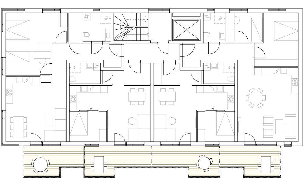
  Sentralt på Kalbakken skal det bygges et nytt leilighetsbygg med 12 leiligheter, næring i 1. etg. og parkeringskjeller.  
 
 
 

PROSJEKTER / BOLIG / HELLUMHJØRNET
Hellumhjørnet

